Property Detail
- Home
- Property Detail
Description
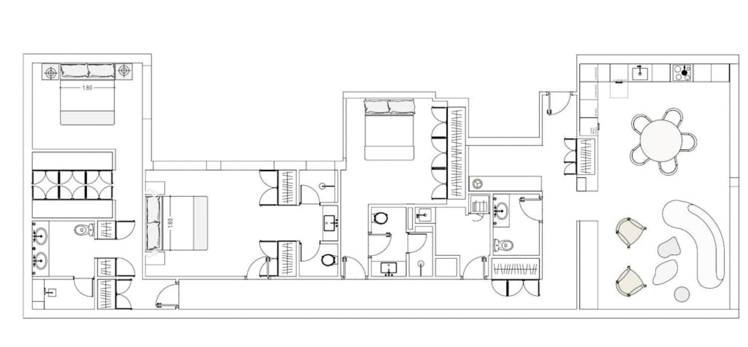
Piso de 193 m² ubicado en la calle Alonso Cano 77, en el corazón de Chamberí, una de las zonas más demandadas de Madrid por su ambiente residencial, excelente comunicación y amplia oferta de servicios, comercios y restauración. En una segunda planta, exterior, con ascensor. La vivienda cuenta con 3 habitaciones, 3 baños completos in suite y un aseo. Aire acondicionado por conducto. Incluye trastero y plaza de garaje en la misma finca. Edificio con portero.
Characteristics
- 3 Rooms
- 4 Bathrooms
- 193 m2 Built Space
- 1 Storage room
- 168 m2 Effective Space
- 1 Parking
- Furnished
- 9.585 € m2
Location
The information resulting from the mortgage simulation is merely indicative, so the reported financial data may vary in the event of request and granting of the loan by each financial institution. The only proposal of this tool is guidance on the estimated estimated cost of the data indicated by the user, and in no case is a contractual offer or the approval of the operation by the entities or any commitment or legal-legal link whatsoever. to consummate it by you or by EstateOne.
Contact Information
Estate One
- Agent: Miren Fernández Atela
- Phone. 1: 650075747
- Phone. 2: 650075747
Contact with Us
Do you want to sell or rent your property?
Contacta con nosotros
2025 Eoelite. All rights reserved