Property Detail
- Home
- Property Detail
Description
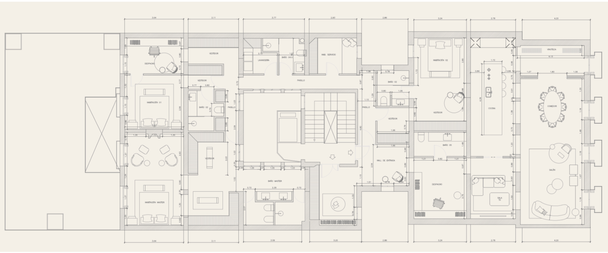
Vivienda única exterior, con 4 balcones a la calle y con gran terraza interior orientada a un patio de manzana especialmente agradable. Ubicada en la exclusiva calle de Villanueva, a escasos metros del Parque del Retiro, en el barrio de Salamanca, una de las zonas más prime de Madrid. Actualmente en proceso de reforma integral, está prevista la finalización de la obra para abril 2026. La distribución prevista será la siguiente: Hall de entrada con aseo de cortesía, despacho independiente, amplio salón-comedor exterior con cuatro balcones exteriores, cocina de gran tamaño conectada con el comedor y acogedora sala de estar junto a la zona social. La zona privada contará con tres grandes dormitorios dobles, todos con vestidor y baño en suite: – El dormitorio principal incluirá además una zona de estar con salida directa a la terraza. – El segundo dormitorio dispondrá de despacho privado y también acceso a la terraza. – Un cuarto dormitorio individual con baño completo. Zona de lavandería independiente. Superficie total construida: 419 m² – 303 m² de vivienda – 70 m² de terraza privada – 46 m² de zonas comunes Techos altos. Edificio clásico madrileño de 1900. Incluye trastero. IBI: 3.400 € anuales.
Characteristics
- 3 Rooms
- 3 Bathrooms
- 419 m2 Built Space
- 1 Storage room
- 1 Dormitorio Servicio
- Bathrooms Services
- 303 m2 Effective Space
- 70 m2
- 14.081 € m2
Location
The information resulting from the mortgage simulation is merely indicative, so the reported financial data may vary in the event of request and granting of the loan by each financial institution. The only proposal of this tool is guidance on the estimated estimated cost of the data indicated by the user, and in no case is a contractual offer or the approval of the operation by the entities or any commitment or legal-legal link whatsoever. to consummate it by you or by EstateOne.
Contact Information
Estate One
- Agent: Guiomar De Carlos Boutet
- Phone. 1: 659880095
- Phone. 2: 659880095
Contact with Us
Do you want to sell or rent your property?
Contacta con nosotros
2026 Eoelite. All rights reserved