Property Detail
- Home
- Property Detail
Description
Estupenda promoción de obra nueva en la mejor zona de Chamberí. El edificio ha sido remodelado y reconfigurado completamente para poder incorporar todas las comodidades actuales dentro de cada vivienda con la mejor calidad. Cada estancia es elegante y refinada, tanto por la calidad de los materiales seleccionados como por la fluidez perfecta de los espacios rediseñados en cada una de las 23 viviendas de muy alto nivel que componen este lujoso edificio residencial. El proyecto no solo rehabilitará las plantas existentes, sino que también levantará cuatro nuevas plantas con un diseño de arquitectura contemporánea. Los residentes tendrán acceso a una piscina en la cubierta rodeada por una terraza panorámica, lo que garantiza el máximo confort y exclusividad. Exclusivas zonas comunes, con piscina, solárium, zona chillout, parking y gimnasio. La rehabilitación del edificio le permitirá contar con 23 viviendas que van desde 67 m2 hasta 300 m2, con opción de 1 a 4 habitaciones. Además, el inmueble tendrá un parking subterráneo de 36 plazas. Almagro es uno de los barrios tradicionales más atractivos y agradables para vivir, donde el excepcional legado arquitectónico de estilo aristocrático se conserva a la perfección. En efecto, fue el lugar de residencia de la nobleza española hasta principios del siglo XX, para convertirse al paso de los años en uno de los barrios escondidos preferido de los madrileños, gracias a sus sitios emblemáticos como la familiar Plaza de Olavide, rodeada de jardines coloridos, terrazas acogedoras, cafeterías y restaurantes en las que es un gusto sentarse al caer la tarde. SITIOS DE INTERÉS 1. Puerta del Sol 2. Puerta de Alcalá 3. Plaza de Colón 4. Plaza Mayor 5. Santiago Bernabeu 6. Catedral de Santa María la Real de la Almudena 7. Plaza España RESTAURANTES 8. El Pescador 9. La Máquina de Jorge Juan 10. Tatel 11. Toni 2 CENTROS COMERCIALES 12. Corte Inglés Castellana 13. Corte Inglés Serrano HOTELES 14. Rosewood Villa Magna 15. Four Seasons Hotel Madrid 16. Mandarín Oriental Ritz MUSEOS Y CULTURA 17. Museo del Prado 18. Palacio Real 19. Museo Sorolla ESCUELAS 20. IE Business School 21. Universidad Complutense
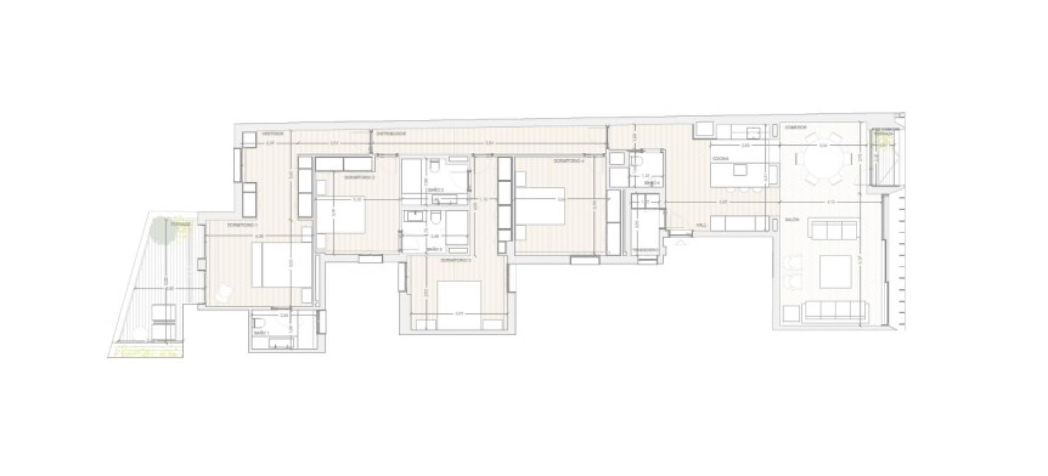
Characteristics
- 4 Rooms
- 4 Bathrooms
- 209 m2 Built Space
- 1 Parking
- 15.789 € m2
Location
Contact Information
Estate One
- Agent: Teresa Lozano
- Phone. 1: 913910554
- Phone. 2: 653393602
 
                                                     
                                                     
                                                     
                                                     
                                                     
                                                     
                                                     
                                                     
                                                     
                                                             
                                                             
                                                             
                                                             
                                                             
                                                             
                                                             
                                                             
                                                             
                                                             
                                                             
                                                             
                                                             
                                                             
                                                             
                                                            